Не упусти свой шанс! Последние акции от застройщиков  ▼

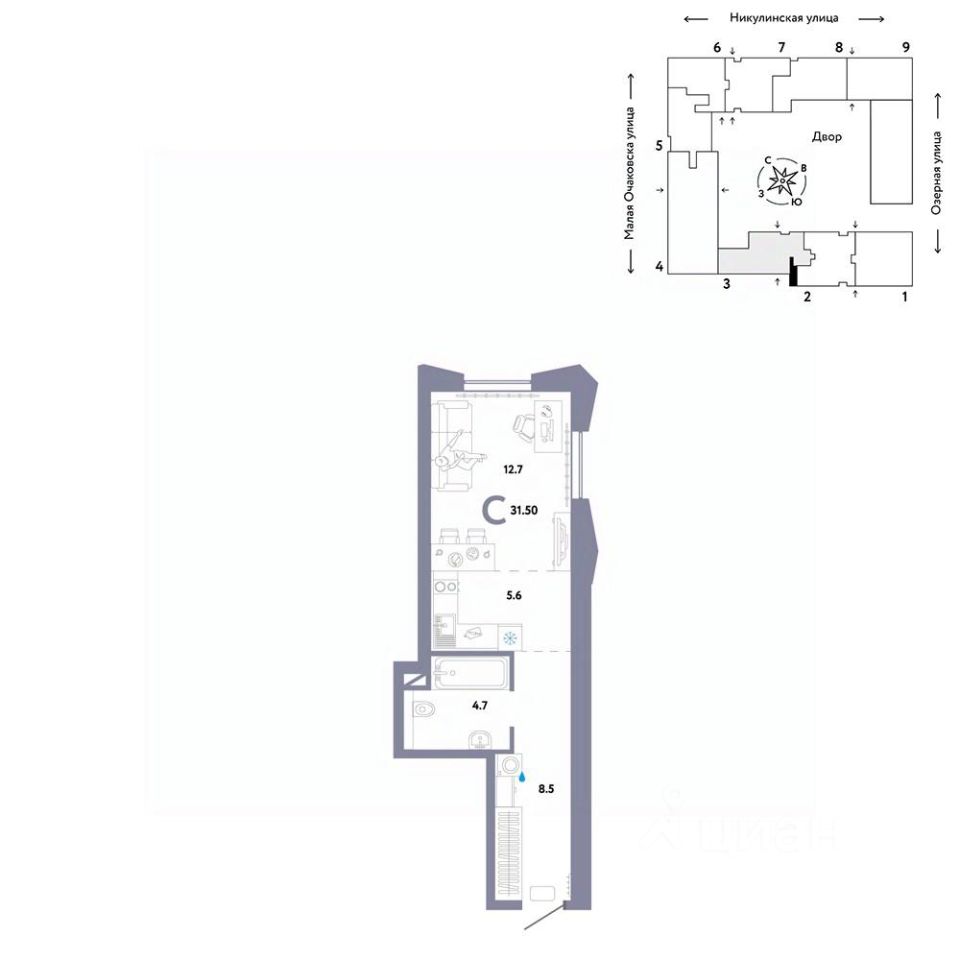
Измалково д. (Одинцовский гор. округ)

Застройщик: МИЦ ГК

Дата сдачи:  3 квартал 2024 г.

Этажность: 17

Тип дома: монолитный

Класс: комфорт

Ипотека: есть

ФЗ 214: не указано

Парковка: охраняемая

Отделка: нет

ЖК "Каштановая роща" на карте

Спецпредложения
Добавить объявление